Skip To Content

1505 38th Street SE

Cedar Rapids, IA 52403
  • $380,000
  • STATUS: Active
  • ON SITE: 13 Days
  • MLS #: 2600007
UPDATED: 60 min ago
$380,000
  • 5
    BEDS
  • 0.29
    ACRES
  • 3
    BATHS
  • 0
    1/2 BATHS
  • 2,373
    SQFT
  • $160
    $/SQFT
Neighborhood:
Type:
Single-Family Home
Built:
2026
County:
Area:

School Information

Elementary School:
Middle School:
High School:

Description

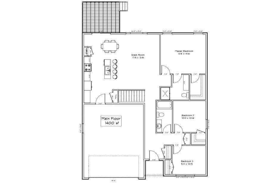
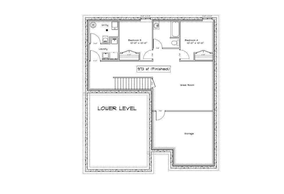
This thoughtfully designed ranch-style home by PRK Williams Building Group blends modern comfort with long-term livability. The to-be-built home offers 1,400 sf on the main level plus 973 sf of finished lower-level space, featuring five bedrooms, three full bathrooms, and a 2 car garage. The main level showcases 9-foot ceilings, a spacious family room, and an open layout ideal for everyday living and entertaining. The kitchen will include soft-close cabinetry, granite countertops, and a large pantry, while walk-in closets provide ample storage throughout. Universal design features such as 3-foot doorways and 4-foot-wide hallways and walkways ensure ease of movement and future flexibility. The finished lower level expands the living space with additional bedrooms, a full bath, and versatile areas perfect for guests or recreation. Enhanced comfort comes with a SONA Whole Home 24/7 Air Purification System for cleaner, healthier air year-round. Get in early to select your own finishes and customizations, and create a home tailored to your lifestyle from the start.

Monthly Payment Calculator

© 2026 Cedar Rapids Area Association of REALTORS® Multiple Listing Service, Inc. All rights reserved. IDX information is provided exclusively for consumers' personal, non-commercial use and may not be used for any purpose other than to identify prospective properties consumers may be interested in purchasing. Information is deemed reliable but is not guaranteed accurate by the MLS or Graf Real Estate ERA Powered. Data last updated: 2026-01-16T21:42:42.347.
www.cedarrapidsareahomes.com/homes/171686050
Print Image

1505 38th Street SE Cedar Rapids, IA 52403

  • Price: $380,000
  • Status: Active
  • On Site: 13 Days
  • Updated: 60 min ago
  • MLS #: 2600007
5
Beds
3
Baths
0
½ Baths
0.29
Acres
2,373
SQFT
$160
$/SQFT
2026
Built
Neighborhood:
SE Quadrant
County:
Linn
Area:
SE Quadrant
Elementary School:
Erskine
Middle School:
Mckinley
High School:
Washington
Property Description
This thoughtfully designed ranch-style home by PRK Williams Building Group blends modern comfort with long-term livability. The to-be-built home offers 1,400 sf on the main level plus 973 sf of finished lower-level space, featuring five bedrooms, three full bathrooms, and a 2 car garage. The main level showcases 9-foot ceilings, a spacious family room, and an open layout ideal for everyday living and entertaining. The kitchen will include soft-close cabinetry, granite countertops, and a large pantry, while walk-in closets provide ample storage throughout. Universal design features such as 3-foot doorways and 4-foot-wide hallways and walkways ensure ease of movement and future flexibility. The finished lower level expands the living space with additional bedrooms, a full bath, and versatile areas perfect for guests or recreation. Enhanced comfort comes with a SONA Whole Home 24/7 Air Purification System for cleaner, healthier air year-round. Get in early to select your own finishes and customizations, and create a home tailored to your lifestyle from the start.
Exterior Features

Architectural Style Ranch Construction Materials Frame Stone Vinyl Siding Foundation Details Poured Garage YN Yes Parking Features Attached Garage Garage Door Opener Patio And Porch Features Deck

Interior Features

Above Grade Finished Area 1400 Appliances Dishwasher Disposal Microwave Refrigerator Basement Full Concrete Basement YN Yes Below Grade Finished Area 973 Cooling See Remarks Central Air Cooling YN Yes Heating See Remarks Forced Air Gas Heating YN Yes Interior Features Breakfast Bar Kitchen / Dining Combo Bath in Primary Bedroom Main Level Primary Central Vacuum Room Type Family Room Great Room

Property Features

Builder Name PRK Williams Building Gr Building Features See Remarks Listing Terms Cash Conventional FHA VA Loan Pets Allowed Yes Possession Negotiable Property Condition To Be Built Property Sub Type Single Family Residence Property Sub Type Additional Single Family Residence Sewer Public Sewer Tax Annual Amount 1120 Water Source Public

Listing information © 2026 Cedar Rapids Area Association of REALTORS® Multiple Listing Service.
Listing provided courtesy of Kevin Heinbuch of PRK Williams Realty: 319-892-3344.
© 2026 Cedar Rapids Area Association of REALTORS® Multiple Listing Service, Inc. All rights reserved. IDX information is provided exclusively for consumers' personal, non-commercial use and may not be used for any purpose other than to identify prospective properties consumers may be interested in purchasing. Information is deemed reliable but is not guaranteed accurate by the MLS or Graf Real Estate ERA Powered. Data last updated: 2026-01-16T21:42:42.347.
 
https://bt-photos.global.ssl.fastly.net/cedarrapids/orig_boomver_1_2600007-2.jpg https://bt-photos.global.ssl.fastly.net/cedarrapids/orig_boomver_1_2600007-2.jpg https://bt-photos.global.ssl.fastly.net/cedarrapids/orig_boomver_1_2600007-2.jpg
Logo
Graf Real Estate ERA Powered
2252 Blairs Ferry Road
Hiawatha IA, 52233